Architectural Design Types: A Guide for Architects
Architectural plans are more than just drawings—they’re the blueprint of an architect’s vision, bringing creative concepts to life in the real world. These detailed layouts serve as essential roadmaps for transforming ideas into functional, well-constructed spaces. In this article, we’ll explore the various types of architectural plans you can leverage to streamline your client consultations and deliver impressive results.
Commonly Used Types of Architectural Plans
Discover the most popular types of architectural designs you should know to elevate your next project.
Floor Plans
Floor plans give prospective homeowners a clear understanding of a building’s interior layout and how each space can be tailored to fit their lifestyle. Architects and interior designers rely on both 2D and 3D floor plans to present these layouts with precision and clarity. While 2D floor plans highlight exact measurements and spatial relationships, 3D floor plans offer a realistic, immersive preview of how the finished home will look and feel.
Site Plans
Site plans provide a clear, top-down view of an entire property, helping you visualize the full layout of a building and its surroundings. They often include detailed floor plans and show how multiple structures are positioned in relation to one another. This bird’s-eye perspective offers valuable insight into spatial planning, ensuring every element of the design fits seamlessly within the overall site.
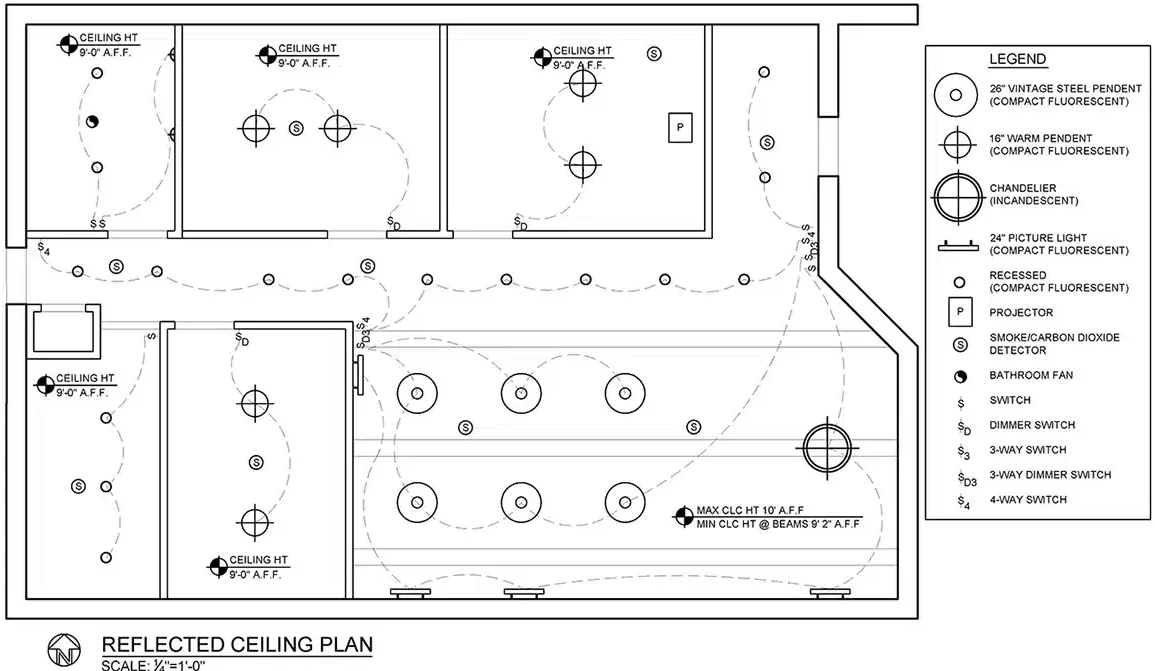
Reflective Ceiling Plan
These floor plans offer a top-down view of an interior space, showcasing the layout as if seen from above. They highlight key architectural elements, lighting arrangements, and the placement of switches—providing a detailed snapshot of how each area is designed and functions.
Millwork Drawings
Millwork drawings showcase precise details of cabinetry, furniture, crown moldings, baseboards, and more—complete with exact measurements. These technical drawings serve as essential guides for builders and craftsmen, ensuring accurate construction and flawless execution of custom interior elements.
Exterior Elevations
Elevation plans highlight the exterior design of a building, offering a clear preview of how the finished structure will appear. Available in both 2D and 3D formats, these plans provide detailed visualizations of facades, finishes, and architectural features—making them essential for understanding the building’s outward aesthetic.
Interior Designs
Interior elevations provide a detailed view of a room’s layout, similar to exterior elevations, showcasing all furnishings and architectural features. While 2D interior elevations offer precise measurements for space planning, 3D interior renderings bring these concepts to life, presenting a fully-furnished space that helps homeowners visualize their dream environment.
Landscape Design
Landscape plans play a crucial role in developing both 3D interior and exterior designs of a building, showcasing key outdoor features like walking paths, fountains, lawns, and pools. These plans help create a harmonious connection between the built environment and natural surroundings.
If you’re an interior designer or architect, this article is sure to be valuable to you. Consider partnering with a professional 3D architectural rendering company to bring your plans to life, offering your clients a stunning, immersive view of their future home design. With the power of 3D technology, you can enhance your presentations and make a lasting impression. Best of luck with your projects!
